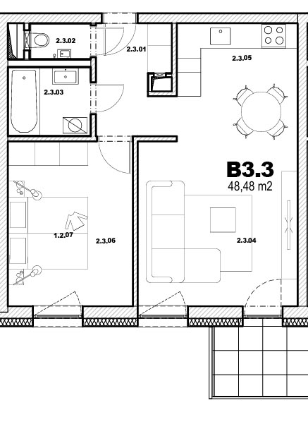
B3.3

Popis miestnosti
Plocha (m²)
CHODBA
5,22
WC
1,37
KÚPEĽŇA
3,58
OBÝVACIA IZBA
19,90
Kuchyňa
5,52
IZBA
12,89

112 900€

Cena holobytu
s dph

voľný

Stav

2

počet izieb

52.98m²

Celková plocha

3. NP

podlažie

5.38m²

Kobka

48.48 m²

Plocha bytu

4.5m²

Balkón

Video

3

Bytový dom

3. NP

podlažie

2

počet izieb

112 900€

Cena s dph

4.5m²

Terasa/
Loggia

52.98m²

Plocha bytu

Stav Holobytu obsahuje

Výplne otvorov

  • Okná s izolačným trojsklom, vonkajšími a vnútornými parapetmi
  • Bezpečnostné, protipožiarne vstupné dvere do bytov – FORNOX

Povrchové úpravy

  • Hladké sadrové omietky, 1 x biely hygienický náter

Podlahové konštrukcie

  • Anhydridové potery

Zdravotechnika

  • Vývody kanalizácie v kúpeľni, WC a kuchyni
  • Ukončené a zaslepené na stene inštalačného jadra
  • Zabudovaný podomietkový splachovací systém Geberit
  • Vodovodný rozvod studenej a teplej vody privedený do bytu po uzatváracie ventily v kúpeľni, WC a kuchyni

Vykurovanie

  • Ústredné vykurovanie radiátorové
  • Termostatické hlavice
  • Napojenie na centrálnu kotolňu
  • Digitálny merač spotreby tepla pre každý byt

Elektroinštalácie

  • Kompletná elektroinštalácia vrátane vypínačov a zásuviek
  • Pripojenie na telefón, internet a TV
  • Optická prípojka

Vzduchotechnika a chladenie

  • Nútené vetranie WC a kúpeľní ventilátorom
  • V priestoroch kuchyne vzduchotechnické potrubie pre odsávač pár

Interiérové dvere vstupné do bytu:

Doplatok za ŠTANDARD

Podomietkový modul Alca + závesné WC so sedátkom soft-close:

Nádržka do lehké stěny k WC Alca AM102/1120

Ovládacie tlačidlo Alca plast biela lesk M570

Zvukovoizolačné vložka na stěnu k WC Multi VLOZKAWC

WC závesné SAT Project vrátane dosky softclose, zadný odpad

Akrylátová vaňa s príslušenstvom:

Obdĺžniková vaňa SAT Fusion 170x70 cm akrylát ľavá aj pravá SIKOVR170

Podpora pre vane SAT a Laguna NOHYLAGUNA

Silfra vaňový automat 47,5 cm chróm SEICR

MULTI vaň.sifón 6/4x40mm-B /matky/ E719

Samostatné keramické umývadla:

Umývadielko SAT Brevis 40,5x20,5 cm SATBRE4020SR

Umývadlo SAT Infinitio 60,5x46,5 cm s otvorom uprostred SATINF6046

Vodovodné batérie s príslušenstvom:

Umývadlová batéria Hansgrohe Focus bez výpuste chróm 31517000

Umývadlová batéria Hansgrohe Focus s bidetovú spŕškou chróm 31926000

Vaňová batéria Hansgrohe Focus bez sprchového setu 150 mm chróm 31940000

Sprchová hlavica s hadicou Hansgrohe Crometta biela/chróm 26690400

Umývadlová výpusť SAT 5/4, clic-clac celochróm VF785CR

Sifón umývadlový SAT 5/4 CR SIFM

Vykurovacie teleso:

Radiátor kombinovaný SAT KD 150x45 cm biela SATRAKD4501500

Vykurovacia tyč 300 W Hopa Siet2 biela SIET2W300

Obklady, dlažby:

RAKO Betonico WAKVK790 obkladačka bielošedá 30x60 cm

Dekor RAKO Betonico bielošedá 60x120 cm mat DAKV1795.1

RAKO Betonico DAK63790 gresová dlaždica bielošedá 60x60 cm

Podlahy:

Oak Fresco Leave

Oak Fresco Bark

Oak Severina

Interiérové dvere:

votster Bello dub latte

VOSTER rumba biela matná

VOSTER rumba cashmere

Doplatok za ŠTANDARD plus

Podomietkový modul Alca + závesné WC so sedátkom soft-close:

Nádržka do lehké stěny k WC Alca AM102/1120

Ovládacie tlačidlo Alca plast biela lesk M570

Zvukovoizolačné vložka na stěnu k WC Multi VLOZKAWC

WC závesné SAT Project vrátane dosky softclose, zadný odpad

Akrylátová vaňa s príslušenstvom:

Sprchová vanička štvorcová SAT Limnew 90x90 cm liaty mramor LIMNEW90Q

Sifón Optima k sprchovej vaničke priemer 90 mm, nízky chróm ESLIMCR90

Panel k vaničke čtvercová SAT LIMNEW 90x90 cm akrylát LIMP90Q

Sprchový kút štvorec 90x90 cm SAT TEX SIKOTEXQ90CRT

Madlo SAT TEX chróm SIKOMADLO2

Sprchový systém Hansgrohe Vernis Blend na stenu s termostatickou batériou chróm 26318000

Skrinky s umývadlom - séria Stilla - biela skrinka - 3x farebná kombinácia dekoru za úchytom, keramické umývadlo:

Kúpeľňová skrinka s umývadlom Naturel Stilla 39x60x22 cm biela STILLAD04008U

Kúpeľňová skrinka s umývadlom Naturel Stilla 60x60x45 cm biela STILLAD06056U2

Kúpeľňová skrinka s umývadlom Naturel Stilla 80x60x45 cm biela STILLAD08057U2

Kúpeľňová zostava 2x zásuvka 60cm + dvojumývadlo 120 cm

Vodovodné batérie s príslušenstvom:

Umývadlová batéria Hansgrohe Focus bez výpuste chróm 31517000

Umývadlová batéria Hansgrohe Focus s bidetovú spŕškou chróm 31926000

Sprchová hlavica s hadicou Hansgrohe Crometta biela/chróm 26690400

Umývadlová výpusť SAT 5/4, clic-clac celochróm VF785CR

Umývadlový sifón SAT priestorovo úsporný do nábytku E660

Vykurovacie teleso:

Radiátor kombinovaný Anima Oliver 151x45 cm antracit SIKODHR5001600A

Vyhrievaná tyč s termostatom 600W chróm GT600

Obklady, dlažby:

Obklad Rako Spectra slonová kosť 30x60 cm mat WAKVK546.1

Obklad Rako Spectra modrá 30x60 cm mat WAKVK548.1

Dlažba Rako Board béžová 30x120 cm mat DAKVF142.1

Podlahy:

Oak Fresco Leave

Oak Fresco Bark

Oak Severina

Interiérové dvere:

Rumba Panama